$ 690,000 – 1613 Traut Road
4 BR / 2 BA Single Family – Kelowna
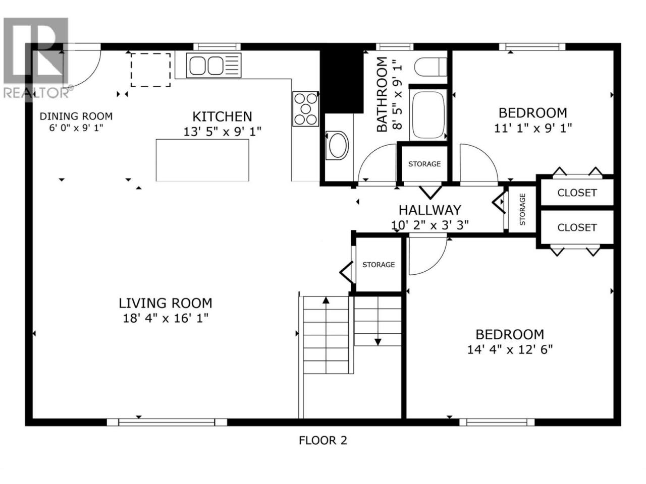
Fantastic opportunity to get into the market with this home and SUITE! This 4 bed 2 bath home with a 1 or 2 bed suite, offers great potential. Situated on a 0.29 acres lot in Black Mountain, the location is fantastic. 15 minutes to down town or 40 minutes to Big White Resort. The kitchen has been recently renovated, stainless steal appliances with a glass door to the extra large deck space. New flooring on stairs in entranceway. Central Vac. The Seller has further renovation materials that will be left, including a new bath tub and toilet ready for the upstairs bathroom renovation. The configuration of the basement leaves it to you if you would like a 1 or 2 bedroom suite. There is a space in the large laundry room to knock through into the garage for another entrance. The home itself is solid and well built. This home offers plenty of potential with a suite, updated kitchen, and one renovated bathroom. A great opportunity for buyers to bring their ideas and make it their own! Seller has completed the Property Disclosure Statement for full transparency. Buyers are encouraged to do their own inspections and due diligence. Call your Realtor today for your private showing (id:6769)Construction Info
| Interior Finish: | 2130 |
|---|---|
| Flooring: | Laminate,Vinyl |
| Sewer: | Municipal sewage system |
| Parking Covered: | 2 |
|---|---|
| Parking: | 6 |
Rooms Dimension
Listing Agent:
Jackie Bradford
(250) 575-6713
(250) 575-6713
Brokerage:
Century 21 Assurance Realty Ltd
(250) 869-0101
(250) 869-0101



