$ 775,000 – 4210 17 Avenue
6 BR / 4 BA Single Family – Vernon
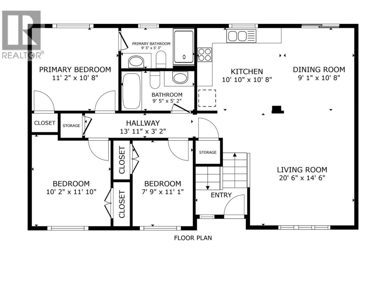
***COURT ORDERED SALE - Fully occupied and income generating home - Updated and versatile home in a sought-after Vernon family neighbourhood! Upstairs offers a bright 3 bedroom, 2 bathroom layout with modern updates throughout. Downstairs, you’ll find two self-contained and updated income producing suites – a 2 bedroom/1 bath and a 1 bedroom/1 bath – perfect for extended family or generating rental income. Whether you’re a first-time home buyer looking to offset your mortgage or an investor searching for strong rental potential, this property checks all the boxes. Conveniently located close to schools, parks, and amenities, this is a move-in ready opportunity you don’t want to miss! ****COURT ORDERED SALE - Reach out for more information on the Court Ordered Sale and the current rental rates. (id:6769)Construction Info
| Interior Finish: | 2207 |
|---|---|
| Flooring: | Carpeted,Laminate,Vinyl |
| Sewer: | Municipal sewage system |
| Parking: | 6 |
|---|
Rooms Dimension
Listing Agent:
Matt Glen
(250) 870-0911
(250) 870-0911
Brokerage:
Century 21 Assurance Realty Ltd
(250) 869-0101
(250) 869-0101



