$ 1,749,998 – 7005/7013 Manning Place
8 BR / 7 BA Single Family – Vernon
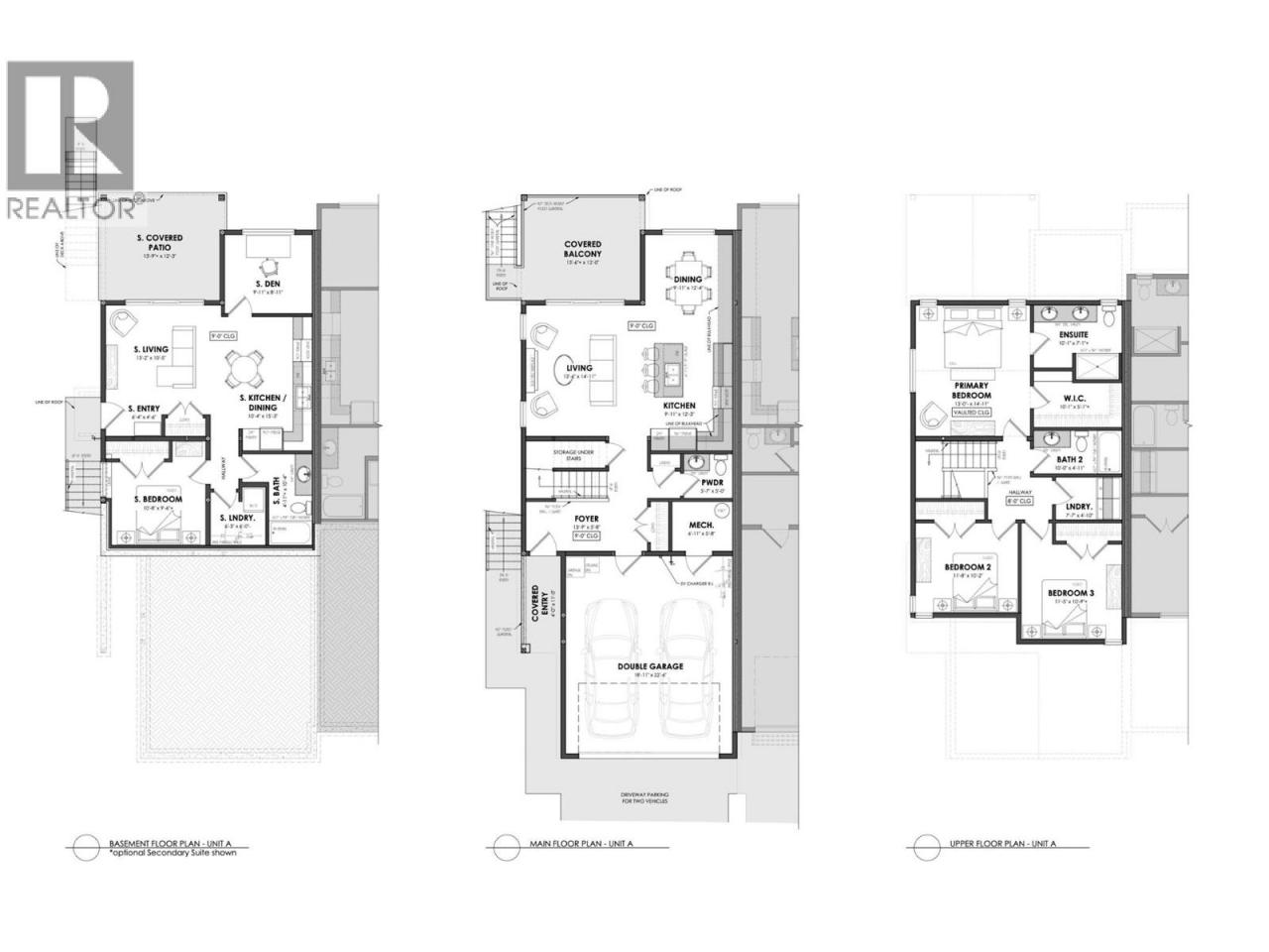
Exceptional Investment Opportunity!!!! This Brand New Full Duplex with 2 Legal suites is Located in the Foothills Newest subdivision at Manning place. Each side has 3 Bedrms on the upper level, Kitchen, Living, Dining on the main level and walk-out basement with 2 bedroom or 1 bedrm+ Den suite, making this a 8/10 bedrm Revenue Propert!!. The open floor plans with electric fireplace, kitchen island & dining off covered sundeck offers the ideal ambiance for entertaining. Upstairs you'll find all 3 bedrms each side. Primary has 4 piece ensuite with heated floor, double vanity & shower, as well as a large walk-in closet. The walk-out basement has 2 bedrooms or 1 bdrm + Den, covered patio and fully self-contained. 2 double garages, fully fenced, landscaped & retaining included. Projected income of $11,000/month ($3500 for main units X 2,$2000 for suites X 2) give this a CAP rate of just over 7%!!! The rural feel, ease of living and convenience to town, schools and the ski hill will appeal to excellent tenants and Owners alike. Great investment & the ease of owning New Construction with Home Warranty for piece of mind!!! GST is applicable. (id:6769)Construction Info
| Interior Finish: | 5033 |
|---|---|
| Flooring: | Vinyl |
| Sewer: | Municipal sewage system |
| Parking Covered: | 4 |
|---|---|
| Parking: | 8 |
Rooms Dimension
Listing Agent:
John Kristian
(250) 549-4161
(250) 549-4161
Brokerage:
RE/MAX Vernon
(250) 549-4161
(250) 549-4161



