$ 749,999 – 2241 Majoros Road
5 BR / 3 BA Single Family – West Kelowna
Steps from Gellatly Bay!! Experience the perfect blend of comfort and convenience in this spacious 5-bedroom walkout rancher, ideally located in the heart of West Kelowna. Featuring an excellent layout and filled with natural light, this home offers versatility and suite potential - a great fit for investors, growing families, multi-generational living, or anyone seeking a mortgage helper. With a bit of love and your personal touch, this could be the perfect home. Enjoy being only minutes from Okanagan Lake, golf courses, shopping, dining, and everyday essentials. From lakeside walks and bike rides to simply soaking in the beauty of the Okanagan, this location offers a lifestyle that truly has it all. Attic upgraded with R-50 insulation. Priced over 100k under assessed value! (id:6769)Construction Info
| Interior Finish: | 2671 |
|---|---|
| Flooring: | Carpeted,Laminate |
| Sewer: | Municipal sewage system |
| Parking Covered: | 2 |
|---|---|
| Parking: | 2 |
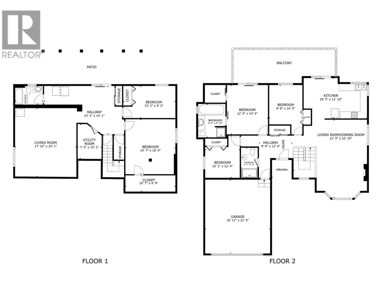
Rooms Dimension
Listing Agent:
Emily Zurrer
(778) 215-8789
(778) 215-8789
Brokerage:
Century 21 Assurance Realty Ltd
(250) 869-0101
(250) 869-0101



