$ 865,000 – 100 Verna Court
4 BR / 3 BA Single Family – Kelowna
WELCOME TO THE KIND OF HOME EVERYONE'S WATCHING FOR!! This 2,500+ sq. ft. family home sits on a large 0.19-acre corner lot in sought-after Glenmore, offering MF1 zoning for incredible future potential. Enjoy immediate comfort and long-term upside with room for a multi-unit development down the road. The main level has an easy, open flow — VAULTED ceilings, big windows, and a cozy gas fireplace make the space feel bright and inviting. The open-concept kitchen and living area connect seamlessly to the private backyard, surrounded by mature cedars and fully fenced for kids and pets to play safely. Step outside to a freshly re-stained cedar deck (2025) — perfect for barbecues, family time, or just enjoying the quiet. The cool lofted flex space adds a unique touch — ideal as a home office, playroom, or extra bedroom — and could easily be closed in for added privacy. The primary bedroom on the main level offers a full ensuite and a comfortable retreat at the end of the day. Downstairs, a 1-bed + den separate living space with its own kitchen, laundry, and private entrance brings ultimate flexibility for multi-gen living and guest quarters. Recent updates include new PEX plumbing (2025), HWT (2020), an 8-year-old roof, and serviced furnace (2025) — meaning most big-ticket items are handled. Outside, there’s RV + boat parking, a double garage, and back-lot access with space for a detached shop. Located near Dr. Knox Middle, North Glenmore Elementary, UBCO, and shopping, this home offers convenience, comfort, and a future full of options. Whether you’re a first-time buyer, growing family, or investor with vision — 100 Verna Court delivers space, flexibility, and opportunity. Book your private tour today! (id:6769)Construction Info
| Interior Finish: | 2531 |
|---|---|
| Flooring: | Carpeted,Laminate,Mixed Flooring,Tile |
| Sewer: | Municipal sewage system |
| Parking Covered: | 2 |
|---|---|
| Parking: | 8 |
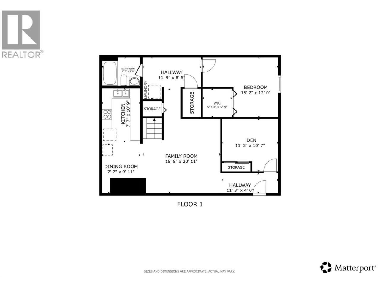
Rooms Dimension
Listing Agent:
Elaine Godeghesi
(250) 271-1224
(250) 271-1224
Brokerage:
Vantage West Realty Inc.
(250) 717-3133
(250) 717-3133



