$ 2,595,000 – 573 Clifton Court
4 BR / 4 BA Single Family – Kelowna
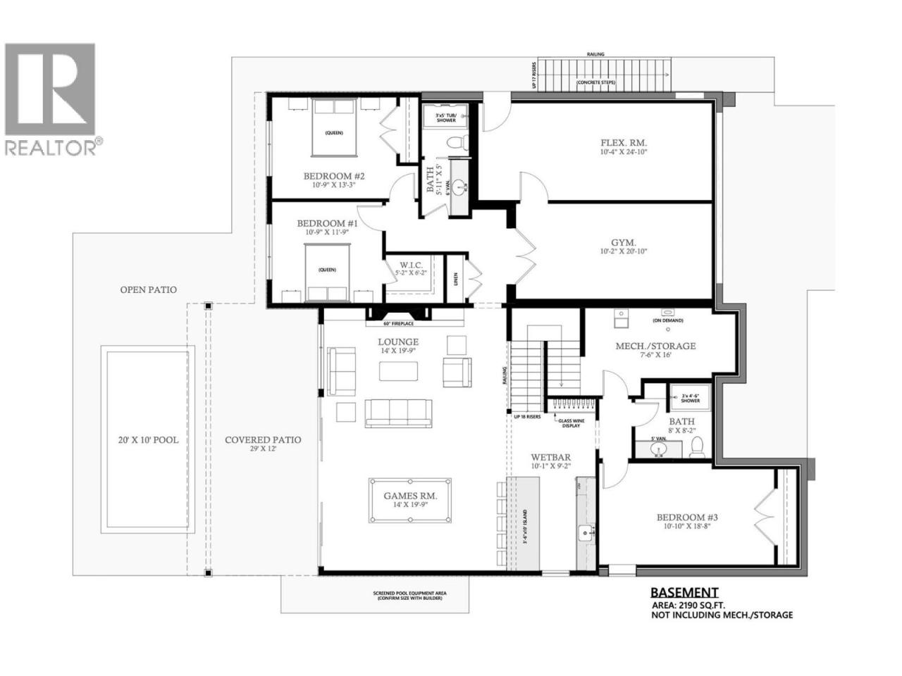
Stunning lake views from this nearly completed home on the most private street in North Clifton Estates. This 4110 square foot luxury home features a salt water pool with an auto cover, yard space, a 2.5 car garage, plus driveway space for 2 cars. Enjoy the quiet location beside the mountain with endless hiking trails, and yet still be only an 8 minute drive to Kelowna's lively downtown core. Featuring 4 bedrooms, 3.5 bathrooms and an office, this home will be open concept and have a modern organic feel. The home will have a climate controlled wine room, 2 fireplaces with custom finishes, soaring ceilings and hardwood floors on the main level. Extra luxuries include built in speakers, a security system, epoxy floors in the garage and a 2 zoned heating and cooling system. Professional landscaping will include a fenced yard, with room for garden boxes or extra space for the dogs and kids, and low maintenance, irrigated plantings with syn lawn- which means no mowing:) (id:6769)Construction Info
| Interior Finish: | 4110 |
|---|---|
| Sewer: | Municipal sewage system |
| Parking: | 4 |
|---|
Rooms Dimension
Listing Agent:
Amber Kronyk
(250) 859-3432
(250) 859-3432
Brokerage:
Royal LePage Kelowna
(250) 860-1100
(250) 860-1100



