$ 19 – 166 Asher Road
0 BR / 0 BA Retail – Kelowna
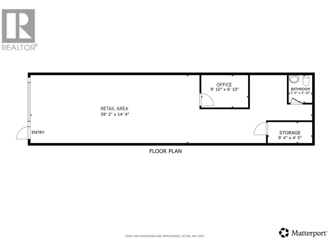
COMPLEX FACADE UPDATE IN PROGRESS! In-line, street level commercial unit available in the Asher Complex, located in the heart of the Rutland Urban Centre. Approx. 915 SF of versatile commercial space, featuring a large, open retail area to the front of the unit with oversized, street facing windows & glass entry door, individual office, flexible back area to use for staff, office or storage. Unit includes a washroom and a storage room to the rear. Parking available to the front and rear of the unit. Centrally located, close to restaurants, coffee shops, banks, boutique businesses, public transportation and only a short walk to Plaza 33. Sorry, no food uses. Vacant at the end of this month. The adjoining unit, 168 Asher Road (+/-2,085 SF) is also available for lease and can be combined if a larger footprint is desirable. (id:6769)Construction Info
| Interior Finish: | 915 |
|---|
Rooms Dimension
Listing Agent:
Kris McLaughlin
(250) 870-2165
(250) 870-2165
Brokerage:
RE/MAX Kelowna
(250) 717-5000
(250) 717-5000



