$ 709,900 – 936 NICOLA Street
4 BR / 2 BA Single Family – Kamloops
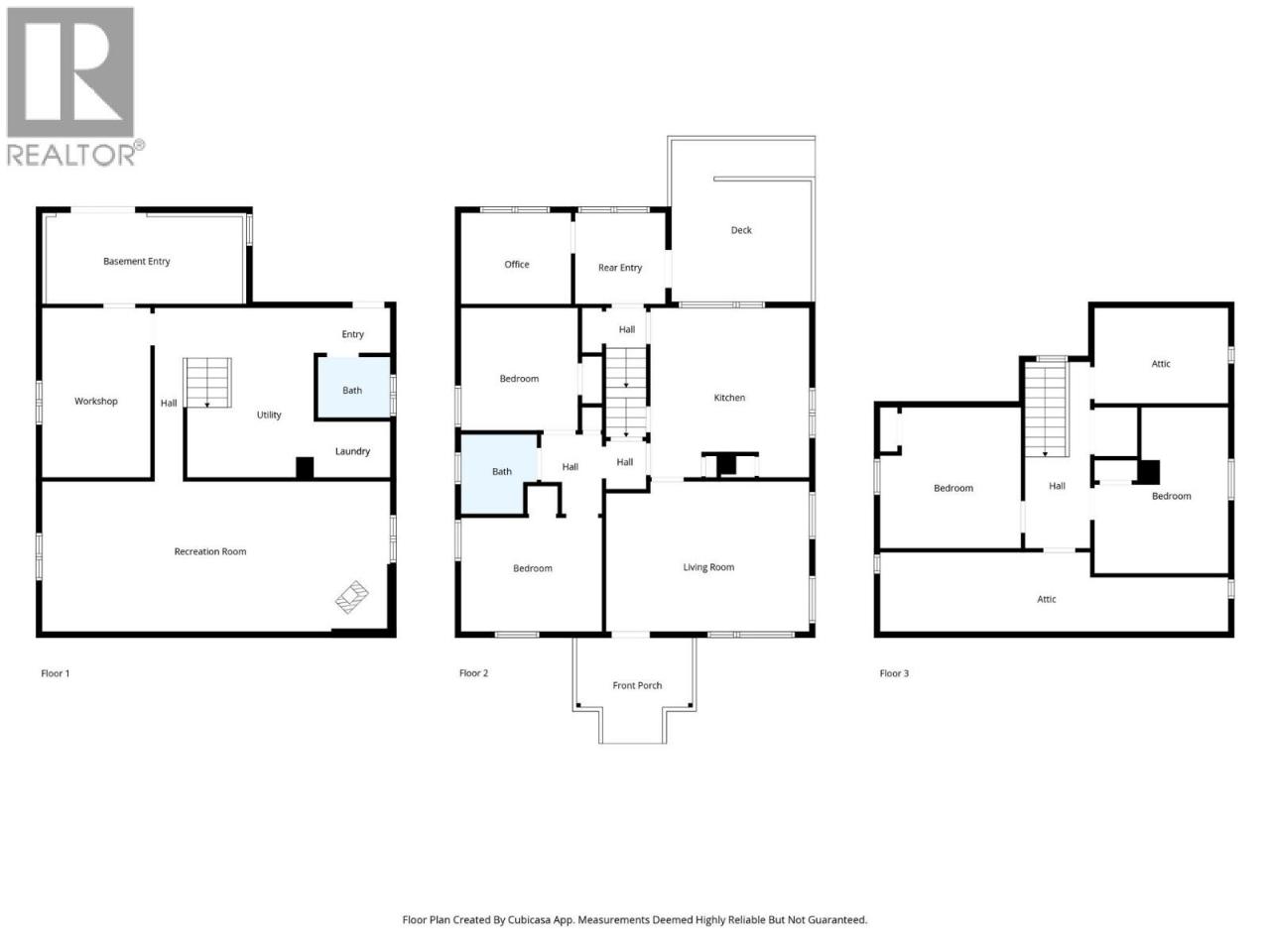
936 Nicola Street warmly welcomes you home with its updated interior and serene like yardspace. This beautiful 3 level home has plenty to offer with 4 bedrooms, 2 full bathrooms, an office space, 2 separate basement entries, and even a workshop with its own ready for any hobby enthusiast. Being just a few blocks from the downtown core, you get the best of both worlds with peace and quiet as well as an easy flat walk to all amenities and the fantastic foodie/coffee/brewery scene of Kamloops. This home has been well taken care of plenty of updates throughout the entire home and a wonderful view off the back deck of Mt. Paul that comes off of the kitchen space and feels like it expands the living area and overlooks a beautiful yard space lush and already has raised garden beds and ready for your personal touch. The basement offers plenty of flexibility with easy walk out to the backyard as well as a large recreational space that makes for easy conversion to a suite if desired. Make sure to view this home and see what life on Nicola Street is all about! (id:6769)Construction Info
| Interior Finish: | 2005 |
|---|---|
| Flooring: | Hardwood,Mixed Flooring,Tile |
| Sewer: | Municipal sewage system |
| Parking: | 3 |
|---|
Rooms Dimension
Listing Agent:
Jared Thomson
(250) 572-3872
(250) 572-3872
Brokerage:
RE/MAX Real Estate (Kamloops)
(250) 374-3331
(250) 374-3331



