$ 699,000 – PILOT MOUNTAIN Road
0 BR / 0 BA Vacant Land – Prince George
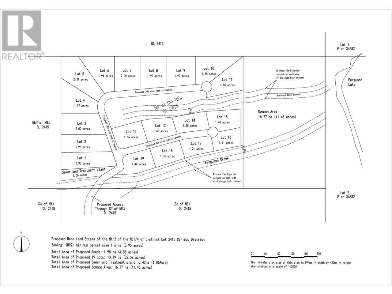
80 acres, just off Pilot Mountain Road, just steps away from and bordering the N/W corner of Ferguson Lake. This parcel is only a few minutes from Prince George and has versatile development opportunities. The parcel has RR2 zoning and is not in the ALR. Also, on Commercial see MLS# C8070208. (id:6769)Construction Info
Rooms Dimension
Listing Agent:
Rob Richard
(250) 564-4488
(250) 564-4488
Brokerage:
Royal LePage Aspire Realty
(250) 564-4488
(250) 564-4488



