$ 999,999 – 10065 90 AV NW
1 BR / 3 BA Single Family – Edmonton
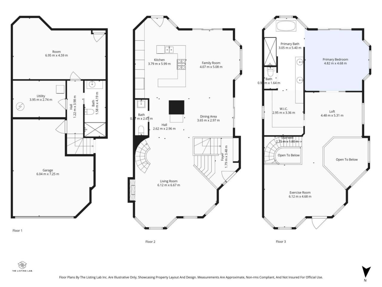
ARCHITECTURAL GEM IN EDMONTON’S RIVER VALLEY! Tucked into the quiet enclave of Skunk Hollow, this modern home blends thoughtful design with rare privacy. Rebuilt from the frame up in 2007, it offers clean lines, warm natural light, and a calm connection to its ravine setting. Large windows frame views of the trees by day and city lights by night. The open main floor includes two inviting living areas and a chef’s kitchen with Sub-Zero and Miele appliances—ideal for cooking or entertaining. Upstairs, the owner’s retreat features a private office, flex area, spa-style ensuite, and a massive walk-in dream closet. The bedroom opens to a peaceful patio, while the serene back deck offers a private escape surrounded by nature—perfect for morning coffee or quiet evenings. The reverse walkout lower level adds a heated epoxy garage, full bath, and guest/flex room (no window), with in-floor heating throughout. Welcome home to your private escape in Edmonton’s river valley. (id:6769)Construction Info
| Interior Finish: | 2261 |
|---|
| Parking: | 4 |
|---|
Rooms Dimension
Listing Agent:
Michael D. Melnychuk
(780) 803-7355
(780) 803-7355
Brokerage:
Century 21 All Stars Realty Ltd
(780) 434-4700
(780) 434-4700



