$ 349,900 – 30 Wood Duck Way
0 BR / 0 BA Vacant Land – Osoyoos
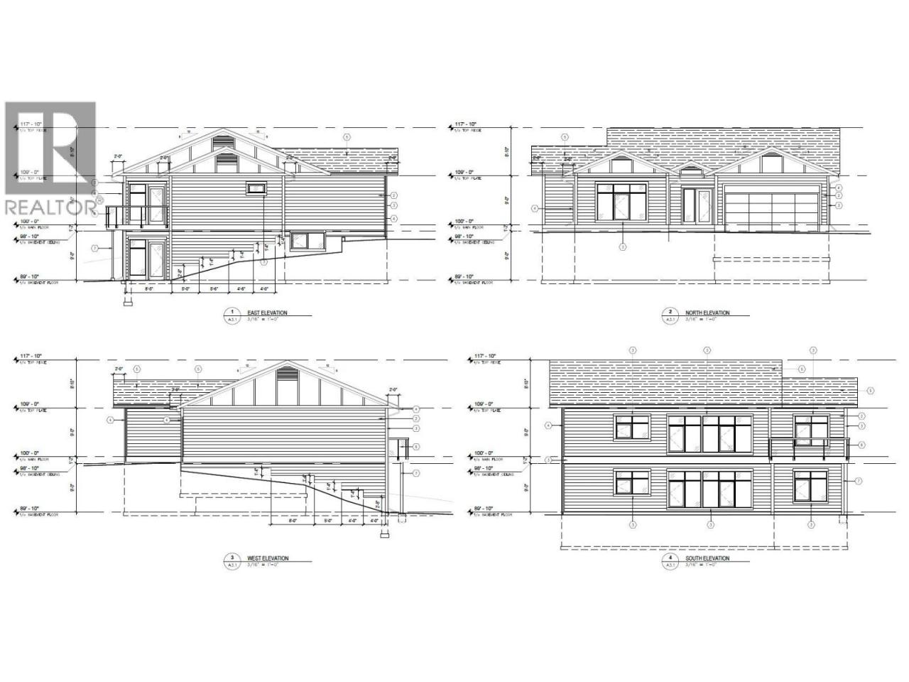
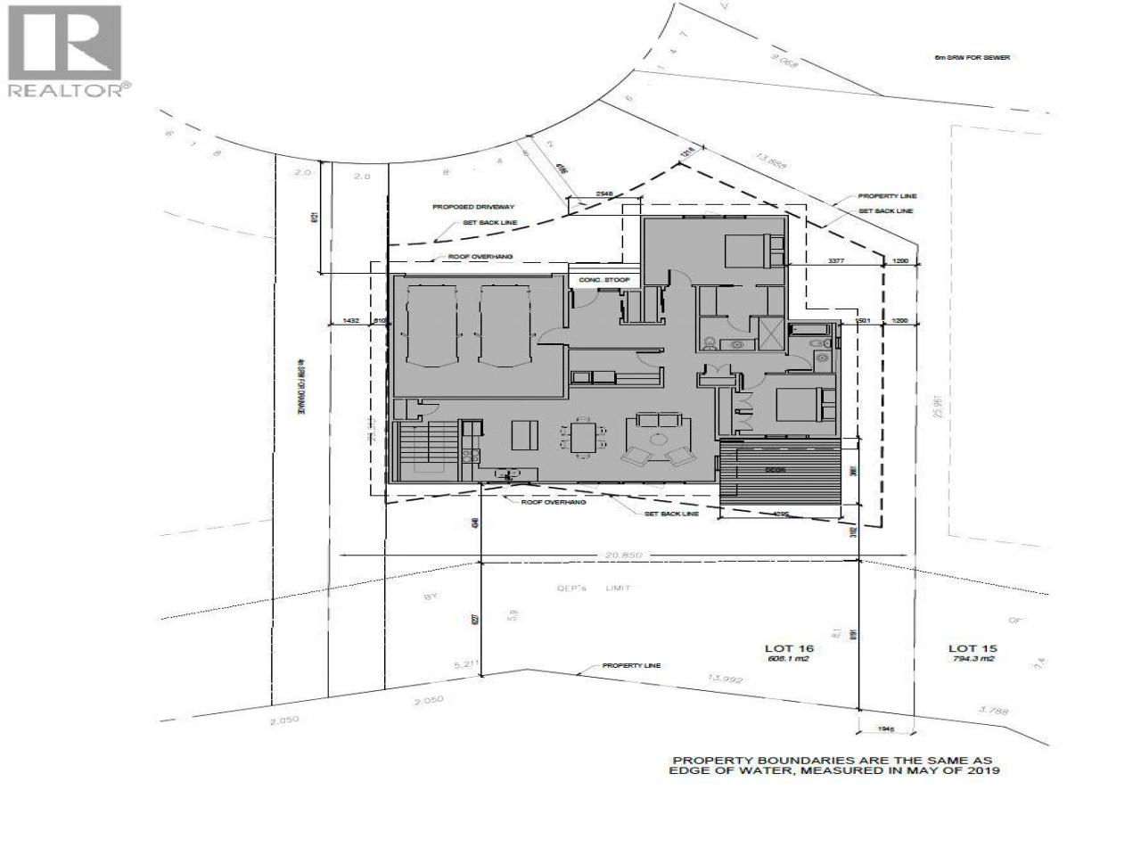
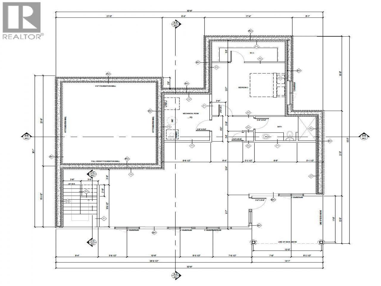
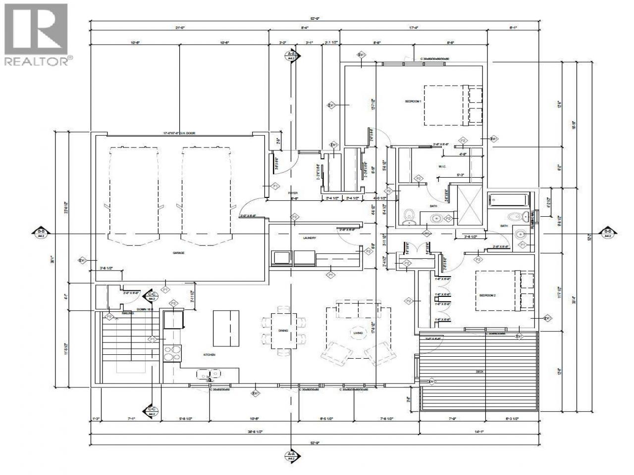
Now available in Osoyoos’s newest subdivision, Meadowlark, this rare waterfront lot offers the perfect opportunity to build your dream home in one of the South Okanagan’s most desirable new communities. Centrally located and close to schools, downtown amenities, golf courses, and recreation, this property combines convenience with the peaceful charm of waterfront living. The lot’s gentle slope is ideally suited for a walkout rancher design with building plans available for your convenience. Whether you’re looking to build your forever home, an investment property, or a seasonal retreat, 21 Wood Duck Way offers flexibility and exceptional value. There’s also an option to purchase this lot individually or as part of a package with other available sites in Meadowlark. Don’t miss this rare opportunity to create your custom home in a growing neighbourhood surrounded by modern builds and stunning natural beauty. (id:6769)Construction Info
| Sewer: | Municipal sewage system |
|---|
Rooms Dimension
Listing Agent:
Arshan Gill
(250) 689-2413
(250) 689-2413
Brokerage:
RE/MAX Realty Solutions
(250) 495-7441
(250) 495-7441



