$ 13 – #202 & 203 5000 Silver Star Road
0 BR / 0 BA Industrial – Vernon
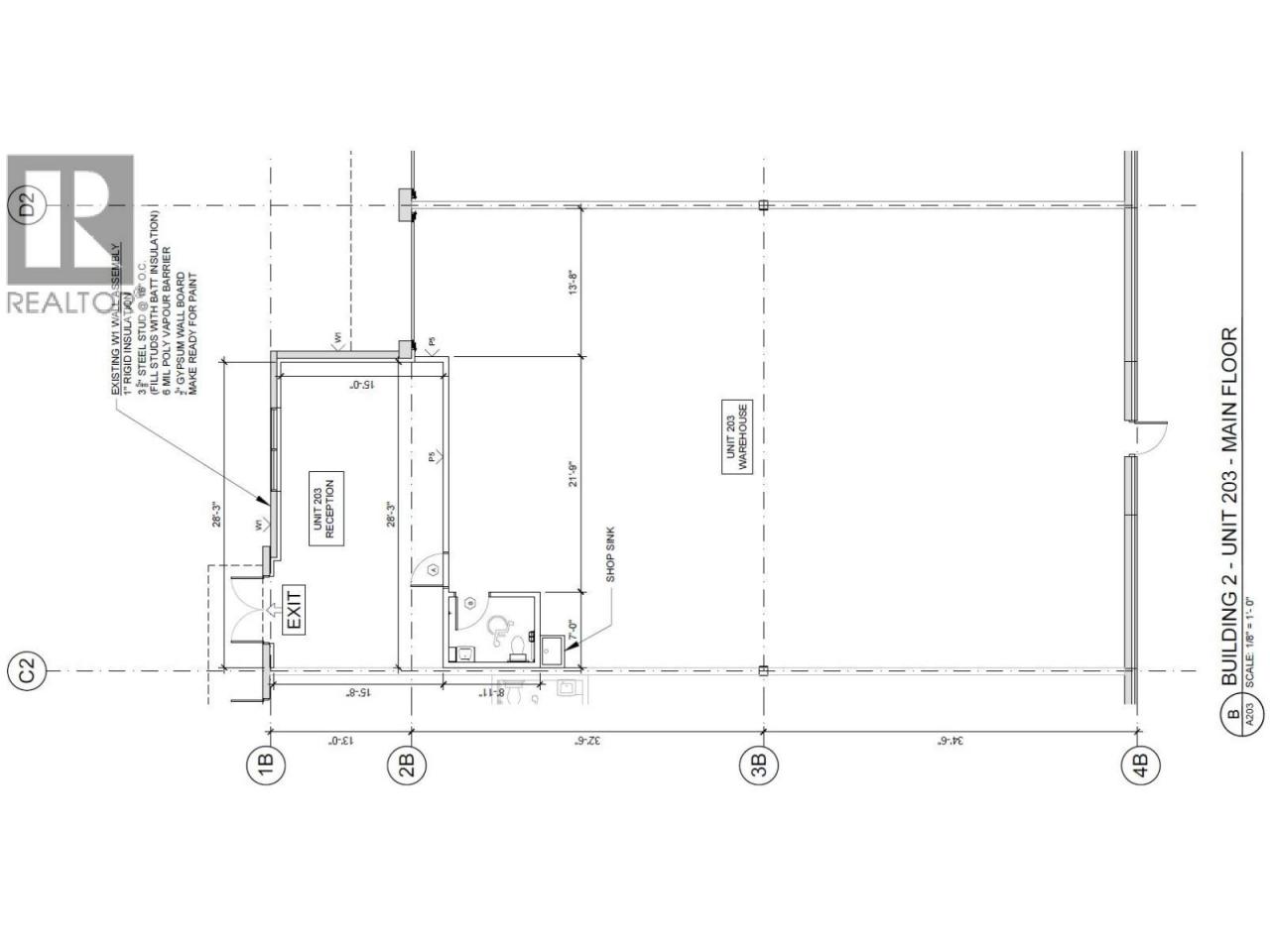
Unit 202/203 at Silver Star Gateway Business Park offers approximately 6,658 square feet of open service commercial warehouse space, with the potential to add a mezzanine or second floor. The unit features one exclusive grade-level loading door (14' x 12'), 24-foot clear ceiling height, motion-sensored LED lighting, and suspended gas-forced heating. This unit also includes a built-in office/showroom and one washroom, providing a functional layout for a variety of business needs. The property benefits from excellent exposure to Silver Star Road and offers ample onsite parking. Available for immediate occupancy. (id:6769)Construction Info
| Interior Finish: | 6658 |
|---|---|
| Sewer: | Municipal sewage system |
Rooms Dimension
Listing Agent:
Lee Levering
(250) 258-9430
(250) 258-9430
Brokerage:
Venture Realty Corp.
(778) 484-5322
(778) 484-5322



