$ 398,000 – #101 371 ALEXANDER Street
0 BR / 0 BA Retail – Salmon Arm
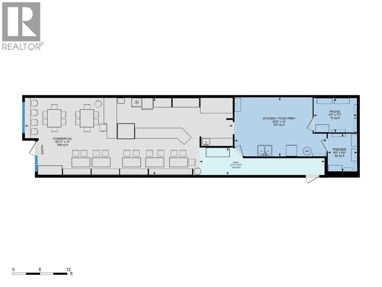
Prime location! This 1,387 square foot retail strata unit is situated in the heart of downtown. Formerly operated as a bistro/cafe, it features a walk-in cooler and freezer, coffee bar and food prep area, spacious seating/dining area, and kitchen space ready for your finishing touches. Access to shared washrooms and directly front Alexander Street allowing for prime exposure and foot traffic. Move in immediately and customize the kitchen for your food service business or adapt the space for a variety of other potential uses. A very rare opportunity to own your own retail space downtown Salmon Arm. Why rent? (id:6769)Construction Info
| Interior Finish: | 1387 |
|---|---|
| Sewer: | Municipal sewage system |
Rooms Dimension
Listing Agent:
Craig Shantz
(250) 832-7051
(250) 832-7051
Brokerage:
RE/MAX Shuswap Realty
(250) 832-7051
(250) 832-7051



