$ 458,800 – #115 8900 Jim Bailey Road
3 BR / 2 BA Single Family – Kelowna
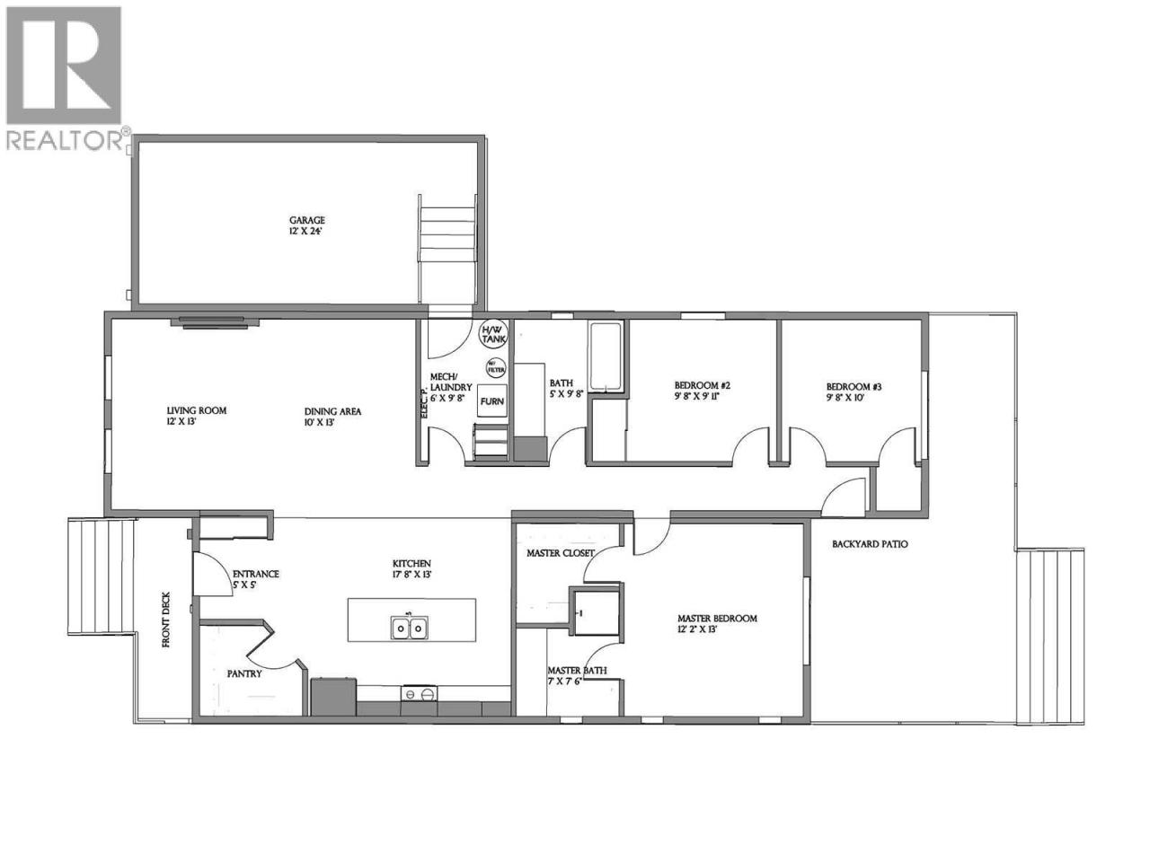
Welcome to Deer Meadows. Your new neighbourhood is conveniently located just steps away from the Rail Trial where you are connected to Woodlake and the blue waters of Kakamalka lake with trail access spanning from Vernon to Kelowna. Deer Meadows is a quick 10 minute commute from the Airport and UBCO's Campus. Rentals and pets are allowed. This Monarch home is built by Woodland Crafted Homes and features a modern layout. With a unique exterior, the 3 bedroom, 2 bathroom home design is created for those that want it all. Entering to the open-concept Kitchen, you walk through a bright front patio and are met with the highly coveted seamless living/dining space. Guest room and spacious Master Bedroom at the back of the house means optimized space distribution. Carport comes as a standard feature and you have the ability to upgrade to a garage. The secluded and fenced backyard to ensure homeowners get every bit of sunshine that the Okanagan has to offer. SHORT TERM RENTALS PERMITTED. Schedule your appointment today! (id:6769)Construction Info
| Interior Finish: | 1372 |
|---|---|
| Flooring: | Vinyl |
| Sewer: | Septic tank |
| Parking: | 3 |
|---|
Rooms Dimension
Listing Agent:
Keith Watts
(250) 864-4241
(250) 864-4241
Brokerage:
RE/MAX Kelowna
(250) 717-5000
(250) 717-5000



