$ 1,199,000 – 894 Morrison Avenue
3 BR / 2 BA Single Family – Kelowna
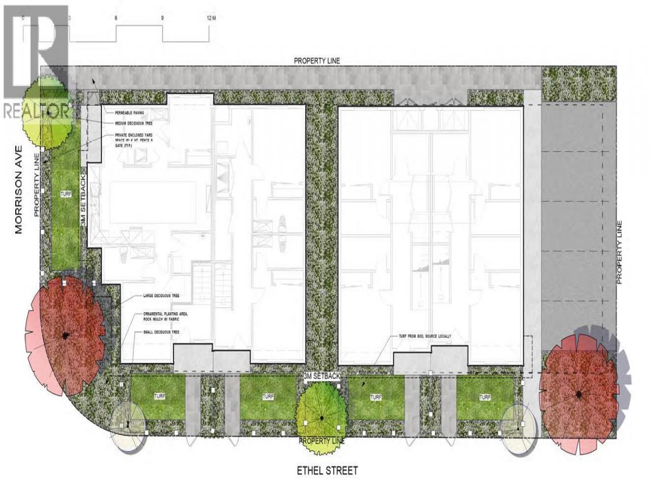
Unlock the full potential of urban living and investment with this prime 0.16-acre corner lot, ideally located and zoned MF1 with approved plans for a five-plex (5 townhomes). This property offers a rare combination of development readiness, flexible design, and unbeatable proximity to Kelowna’s most desirable amenities. With 66.7% site coverage & thoughtfully designed layout, approved plan includes five units: Unit #1 fronting Ethel Street with rear-lane access, #2 & #3 also fronting Ethel Street, #4 & #5 fronting Morrison Avenue & Ethel Street. 5 dedicated parking stalls, bike parking & three-storey build potential, a configuration perfectly tailored to today’s rental and resale markets. Current 3 beds 2 baths home is a great rental, offers generous outdoor areas ideal for private yards and garden, with dual vehicle access from both the street frontage and the rear laneway, extra room for RV/camper parking. Located just steps from the active transportation corridor on Ethel Street and minutes from KGH, Pandosy Village, Highway 97, Okanagan College, Guisachan Village, and Kinsmen Park, this site promises long-term value in one of Kelowna’s fastest-growing urban pockets. Whether you’re an investor seeking a strategic holding property, a builder looking for a shovel-ready multi-family project, or a visionary developer aiming to create sought-after urban homes, this lot represents an exceptional opportunity to shape the future of central Kelowna living. (id:6769)Construction Info
| Interior Finish: | 1480 |
|---|---|
| Flooring: | Laminate |
| Sewer: | Municipal sewage system |
| Parking: | 6 |
|---|
Rooms Dimension
Listing Agent:
JP Letnick
(778) 363-1314
(778) 363-1314
Brokerage:
Oakwyn Realty Okanagan-Letnick Estates
(250) 861-5122
(250) 861-5122



