$ 1,495,000 – 209 Summer Wood Drive
4 BR / 3 BA Single Family – Kelowna
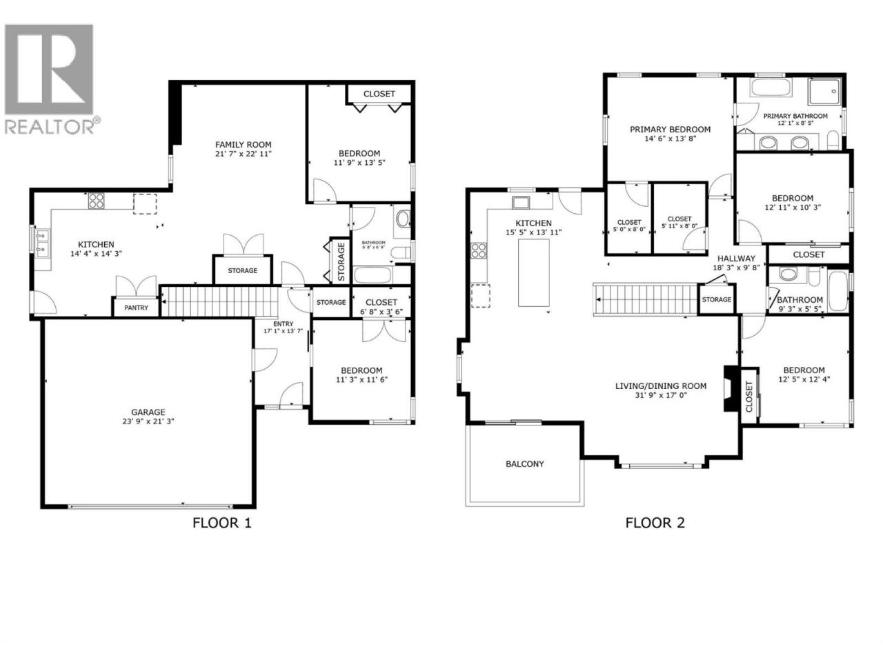
This Step 4 energy-rated home in Wilden stands out for its exceptional build quality, thoughtful design, and high-performance features. Offering 3 bedrooms and 2 bathrooms on the main level—a rare and highly desirable layout for families—plus a flexible bonus room or office on the lower level and a large 1-bed legal suite, the floor plan delivers versatility without compromise. The interior is defined by 9-ft ceilings on both levels, creating a bright, open atmosphere complemented by large windows, wide-plank white oak hardwood flooring, high-end cabinetry and appliances, waterfall countertops, and a striking gas fireplace. The ensuite is a beauty, featuring heated floors, a spacious walk-in shower, double vanity, and a freestanding bathtub. Built for modern living, the home includes a dual-fuel heating system, HRV system, upgraded electrical with 200amp service plus 100amps to the suite, along with EV and hot tub wiring. Epoxy decking, extensive storage, and a large exterior storage area allow the oversized garage to be used for actual vehicle parking, a feature rarely found and highly valued. Outdoor living is equally impressive with a fully fenced backyard, covered deck, expansive patio with built-in fire pit, and private front balcony—ideal for entertaining or enjoying the Okanagan lifestyle. This home delivers a rare combination of efficiency, functionality, and elevated finishes in one of Wilden’s most sought-after neighbourhoods. THIS IS A MUST SEE HOME! (id:6769)Construction Info
| Interior Finish: | 2921 |
|---|---|
| Flooring: | Carpeted,Hardwood,Vinyl |
| Sewer: | Municipal sewage system |
| Parking Covered: | 2 |
|---|---|
| Parking: | 4 |
Rooms Dimension
Listing Agent:
Ryan Brown
(250) 859-0226
(250) 859-0226
Brokerage:
Century 21 Assurance Realty Ltd
(250) 869-0101
(250) 869-0101



