$ 829,000 – 375 Okaview Road
0 BR / 0 BA Vacant Land – Kelowna
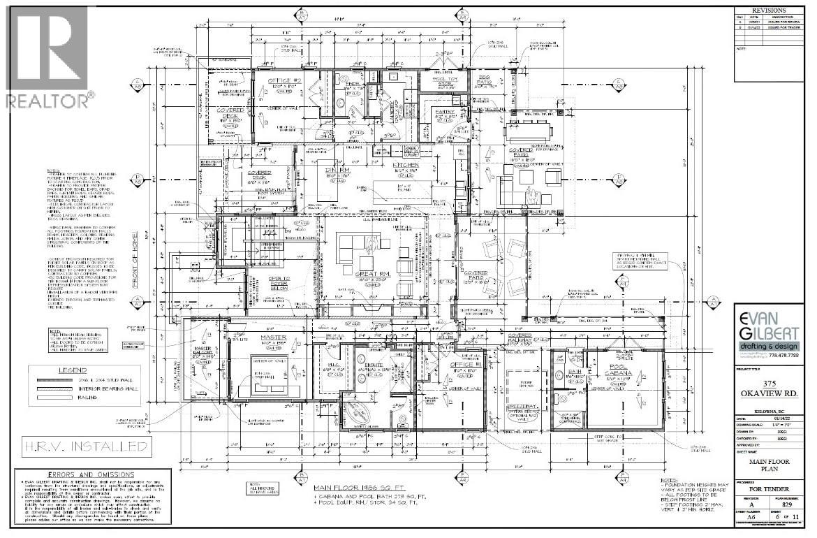
Beautiful Lakeview Lot located in the sought-after Upper Mission neighborhood. This 0.26-acre lot (11,325 square feet) is ideal for a custom-built home. With no required building timeframe and no obligation to use a specific builder, you have complete flexibility. All essential services are already at the lot line, making this property ready for development. The gently sloping terrain is perfectly suited for a walk-up rancher design, offering ample space for a pool, additional parking, and outdoor entertainment areas. Conceptual drawings for this lot are attached to this listing to help you visualize your dream home on this stunning lot. The lot is conveniently close to Summer Hill and Cedar Creek Wineries, Okanagan Lake, schools, shopping centers, walking trails, and numerous other amenities. Conceptual drawings for this lot are attached to this listing to help you visualize your dream home on this stunning lot!!!! (id:6769)Construction Info
| Sewer: | Municipal sewage system |
|---|
Rooms Dimension
Listing Agent:
Raj Kandola
(250) 870-3294
(250) 870-3294
Brokerage:
Century 21 Assurance Realty Ltd
(250) 869-0101
(250) 869-0101



