$ 1,799,000 – #3 4495 Walker Road
5 BR / 5 BA Single Family – Kelowna
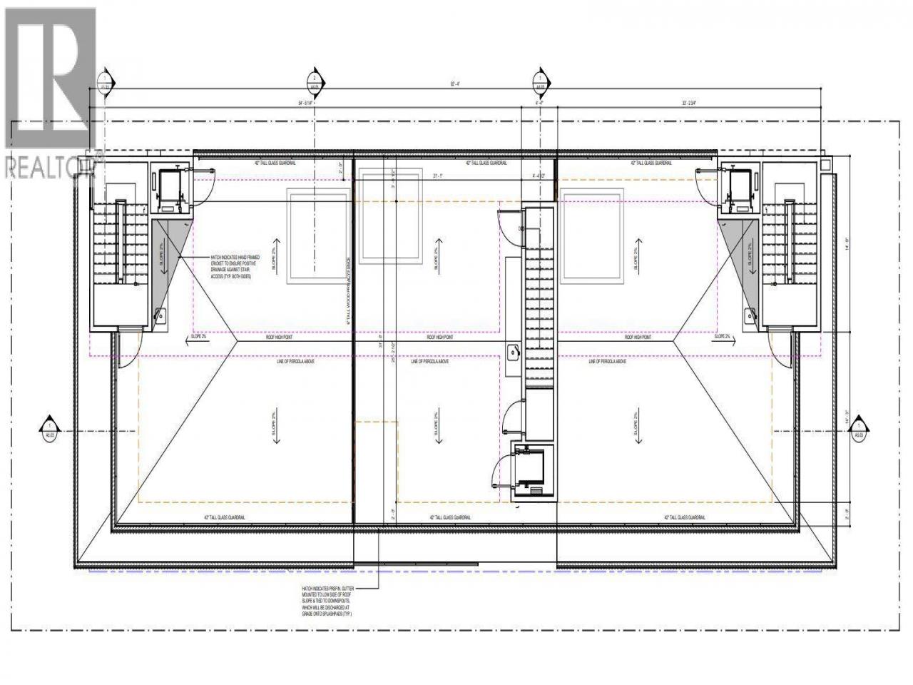
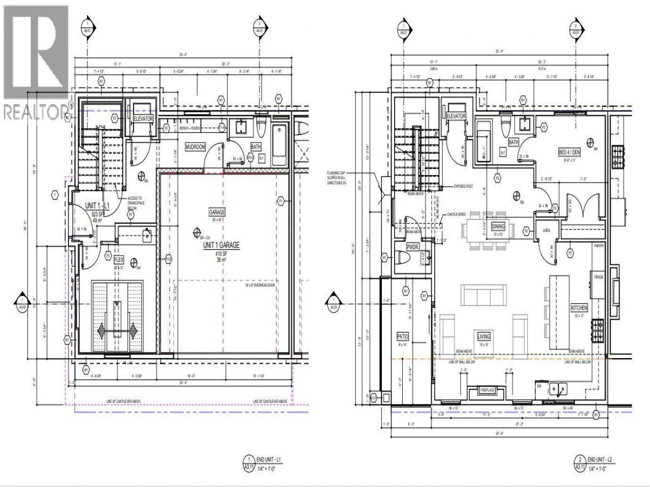
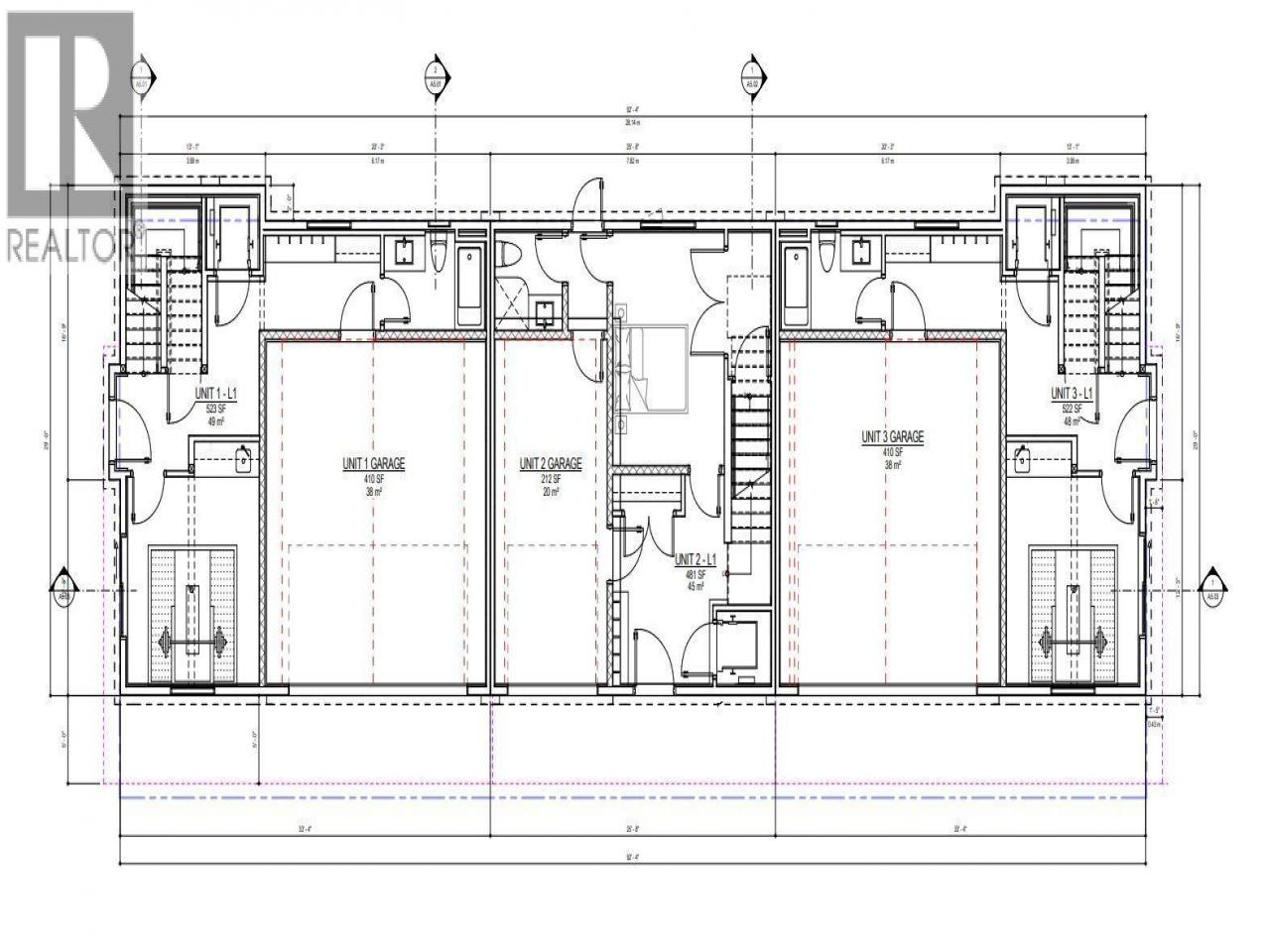
Introducing the pinnacle of luxury living!! This brand-new, spacious 2,241 SqFt high-end townhome features 5 bedrooms, 5 bathrooms, PLUS a rooftop deck! 3 floors of top quality finishing, every detail has been meticulously crafted. The interior boasts a gourmet kitchen with granite countertops, stainless steel appliances and a central island. Exposed beams create a unique architectural statement by blending rustic charm with modern living. For ultimate convenience, a front door ramp and an in-unit elevator provide easy access to all levels. The third floor is designed for family living, featuring a primary suite with a curbless custom tile shower, double vanity, and walk-in closet, alongside two additional bedrooms. The first and second levels provide flexible spaces for guest suites or additional bedrooms. The rooftop deck offers stunning lake, mountain, and city views and is equipped with a bar sink, TV, and surround sound. Additional features include side by side laundry on the main floor with a laundry chute, built-in Sonos speakers throughout and a large attached garage complete with a dog wash and accessible crawlspace storage. Take a short stroll to the lake and beautiful Sarsons Beach Park where you can bring your kayak, paddle board or just soak up the sun-kissed lake life. Located in the sought after Lower Mission area close to shops, restaurants, breweries and multiple outdoor trails, this stunning townhome is situated in a prime location! Buy now and personalize your dream home with your choice of finishing. Plus GST (id:6769)Construction Info
| Interior Finish: | 2241 |
|---|---|
| Sewer: | Municipal sewage system |
| Parking Covered: | 2 |
|---|---|
| Parking: | 2 |
Rooms Dimension
Listing Agent:
Wes Jones
(250) 215-1084
(250) 215-1084
Brokerage:
RE/MAX Kelowna
(250) 717-5000
(250) 717-5000



