$ 2,000,000 – 128 Lake Point Court
6 BR / 5 BA Single Family – Kamloops
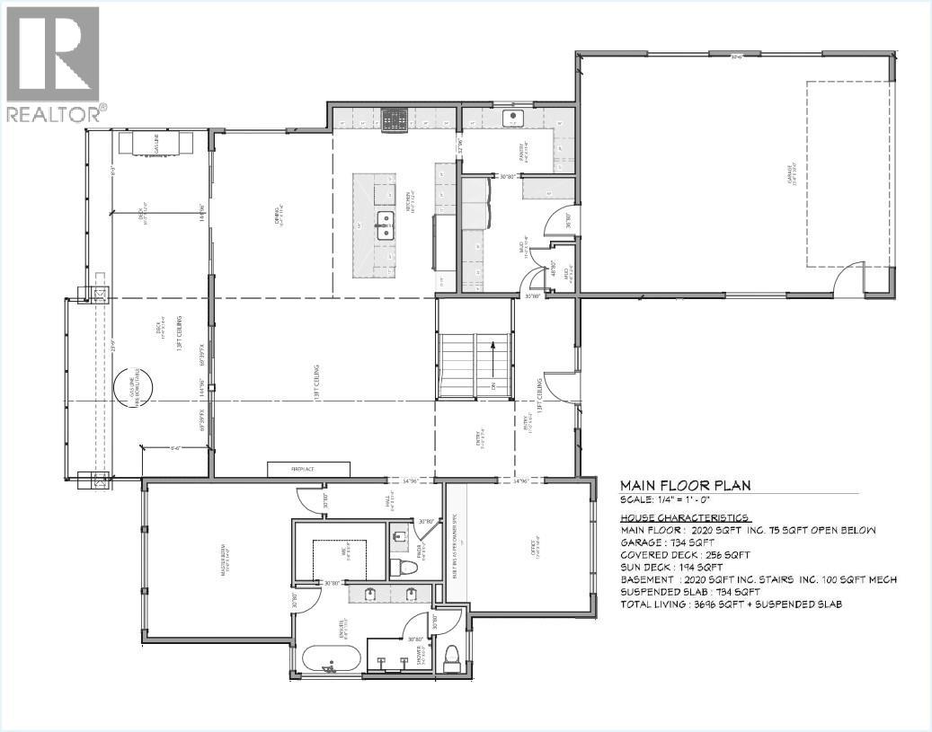
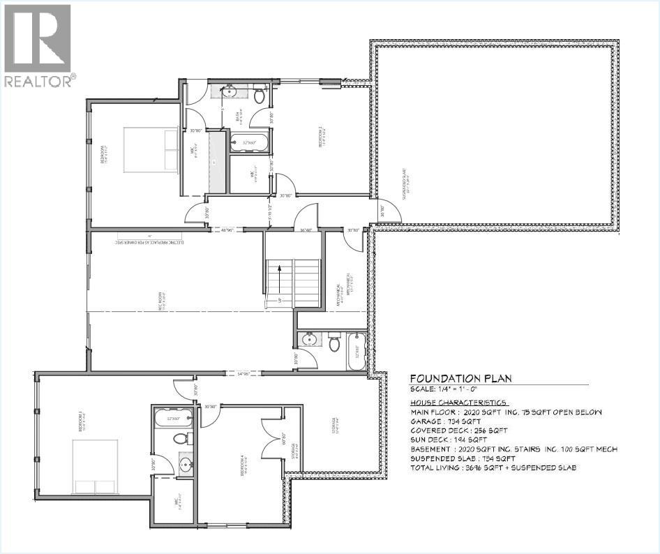
Welcome to 128 Lake Point Court. This +25,000 SqFt lot will feature a stunning rancher with full basement, complete with up to 6 bedrooms and 5 bathrooms. The main level boasts a front guest bedroom (or office / den), a spacious main living area with flow between the large kitchen and bright dining room, as well as a butler’s pantry, and laundry / mudroom combo leading into the double car garage. Finishing off the level is a 2pc powder room just before the bright Primary Suite, with its 6pc ensuite featuring a double headed shower and double vanity, and separated water closet. The lower level encompasses a large rec room, surrounded by the 4 additional large bedrooms, 3 bathrooms, plus an extra storage room. The suspended slab area could be utilized to provide more square footage to the home and would be perfect as a media / theatre space for family and friends. The outdoor space features a covered deck area and sundeck well suited for entertaining and taking in those infamous Tobiano sunrises, no matter the weather. Please contact for more information and construction schedule. All meas are approx., buyer to confirm if important. (id:6769)Construction Info
| Interior Finish: | 4040 |
|---|---|
| Flooring: | Mixed Flooring |
| Parking Covered: | 2 |
|---|---|
| Parking: | 2 |
Rooms Dimension
Listing Agent:
Trevor E Finch
(778) 765-3390
(778) 765-3390
Brokerage:
eXp Realty (Kamloops)
(833) 817-6506
(833) 817-6506



