$ 2,495,000 – 955 Gable Road
4 BR / 6 BA Single Family – Lake Country
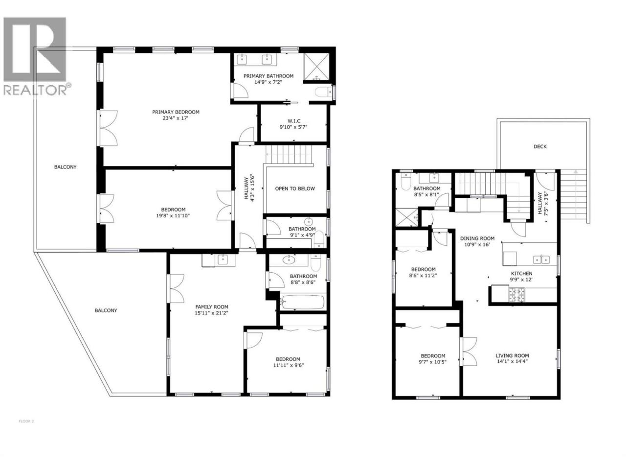
Discover the ULTIMATE LAKESIDE RETREAT in this meticulously reimagined SEMI-WATERFRONT HOME. Only steps away from the beach & boat launch, this property embodies the sun-drenched spirit of the Okanagan. With over $300K in PRECISION UPGRADES, this home has been modernized to a consistent, high-quality standard throughout. A gourmet kitchen w/custom cherry cabinetry & a sprawling island anchors the open-concept great room. The uninterrupted panoramic views flow through to the living room featuring a custom crafted mantle w/new gas fp w/vaulted ceiling & exposed beam. The upper level provides a private sanctuary, headlined by the primary bdrm featuring an expansive walk-in closet & a spa-inspired ensuite w/an elegant glass shower & heated floors. A generous 2nd bdrm, powder room, a 3rd bdrm, 4 piece bathroom PLUS family room w/coffee bar & access to a deck w/lake view, offers an additional refined space for family & friends. Beyond the primary residence, the property offers dual high-end guest or income opportunities. A LEGAL two-bdrm suite sits privately above the oversized garage, complemented by an additional one-bdrm suite, both registered & licensed w/the District for short term rentals, w/o sacrificing privacy. An exquisite outdoor haven incl. a custom kitchen & fireside lounge - a tranquil space to take in the beauty of the lake. Buoy, RV & boat parking, spacious driveway & an oversized, heightened double garage! This estate easily accommodates all Okanagan needs & more! (id:6769)Construction Info
| Interior Finish: | 4340 |
|---|---|
| Flooring: | Ceramic Tile,Hardwood,Other |
| Sewer: | Septic tank |
| Parking Covered: | 2 |
|---|---|
| Parking: | 7 |
Rooms Dimension
Listing Agent:
Terri Ann Novello
(250) 808-1005
(250) 808-1005
Brokerage:
Century 21 Assurance Realty Ltd
(250) 869-0101
(250) 869-0101



