$ 988,000 – 2931 Thacker Drive
3 BR / 3 BA Single Family – West Kelowna
Unbeatable Value in Lakeview Heights - Experience resort-style living in the heart of the Okanagan Wine Trail. This three bedroom, three bathroom sanctuary is an entertainer’s dream, featuring an expansive outdoor oasis complete with a sparkling pool, hot tub, rejuvenating sauna, and a custom fire pit. The professionally landscaped grounds offer ultimate serenity with a tranquil pond, meandering stream, and lush greenery. Inside, the open-concept floor plan is flooded with natural light, highlighting a chef-inspired kitchen and inviting living spaces. The primary retreat offers private outdoor access, while the additional bedrooms are perfect for family or a home office. Practicality meets luxury with two driveways, ample guest parking, and dedicated RV space. Bonus: Zoning allows for a carriage home! Located minutes from world-class wineries, hiking, and dining—this is the ultimate Okanagan lifestyle. (id:6769)Construction Info
| Interior Finish: | 3290 |
|---|---|
| Flooring: | Carpeted,Ceramic Tile,Hardwood |
| Sewer: | Municipal sewage system |
| Parking Covered: | 1 |
|---|---|
| Parking: | 7 |
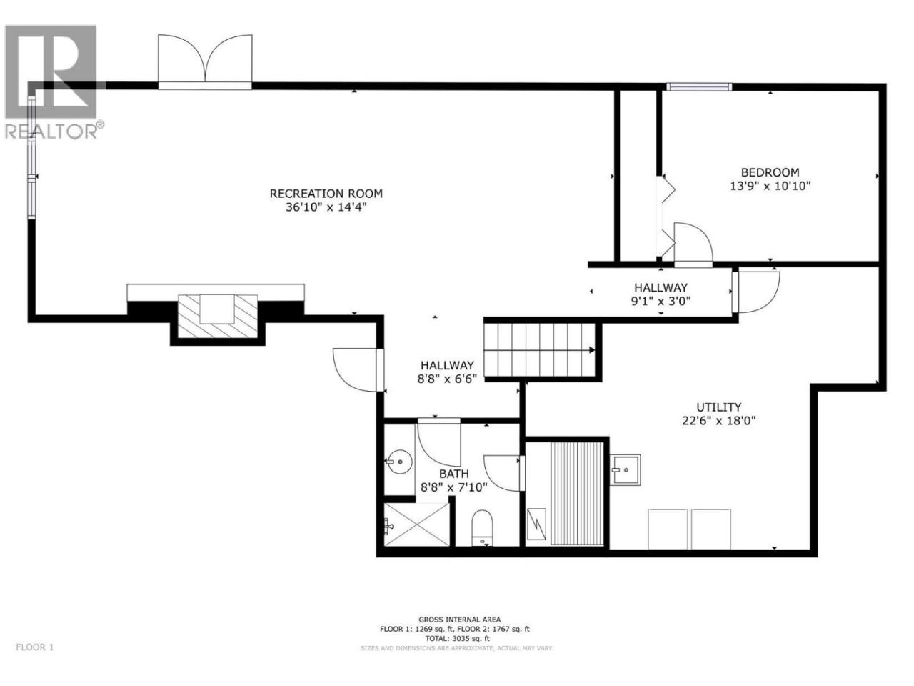
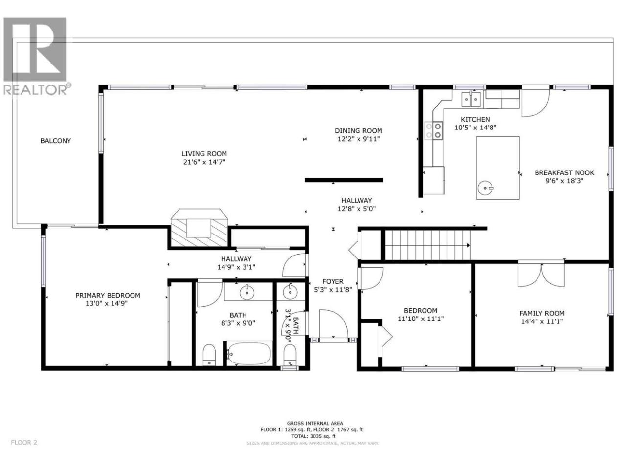
Rooms Dimension
Listing Agent:
Luke Cook
(250) 863-5539
(250) 863-5539
Brokerage:
Sotheby's International Realty Canada
(250) 469-9547
(250) 469-9547



