$ 449,900 – #304 1607 43 Avenue
3 BR / 3 BA Single Family – Vernon
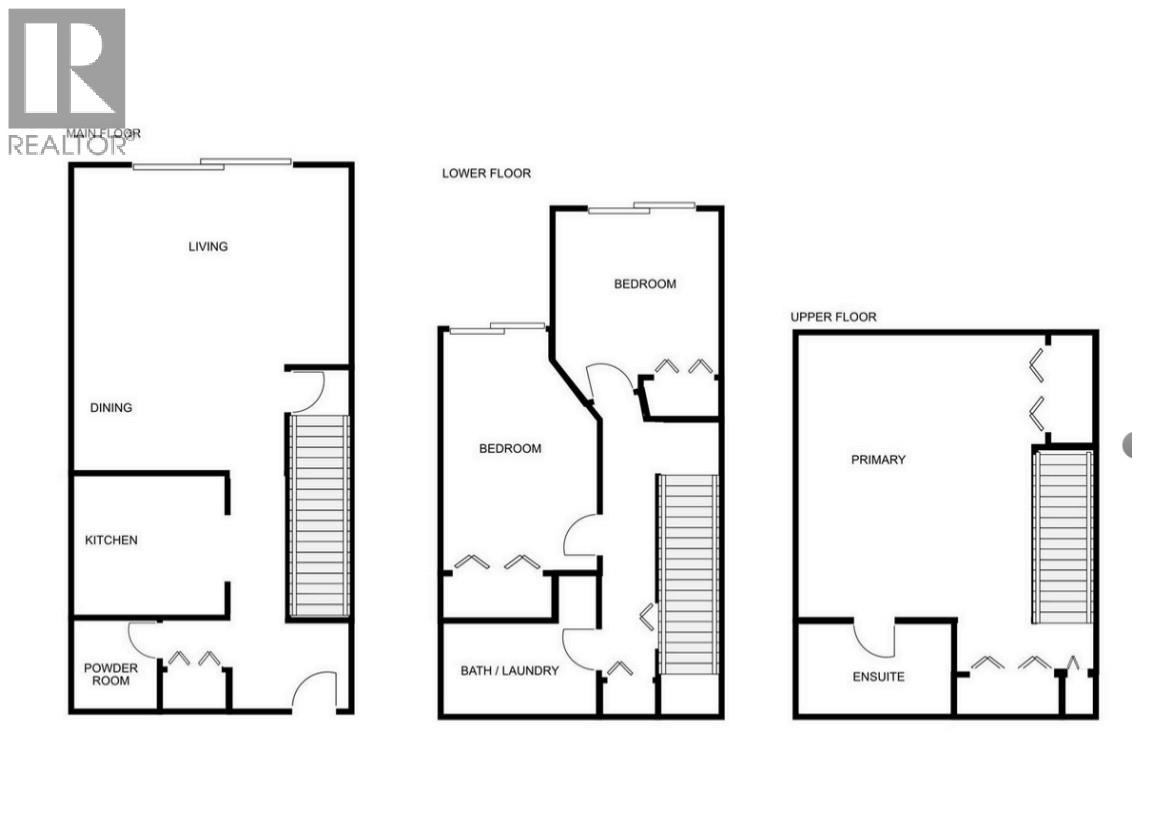
Very unique 3 bedroom, 3 bathroom floorplan. Main floor has kitchen with sit up breakfast bar that opens to Living room with a gas fireplace. Deck overlooks green space. 2 piece powder room. Large Primary bedroom on top level with a full ensuite.is completely on its own for privacy.. The lower level has 2 bedrooms that both lead out to patio. a full bathroom, laundry area and under stairs storage. Nice area and location on City bus route. 2 parking stalls. (id:6769)Construction Info
| Interior Finish: | 1284 |
|---|---|
| Sewer: | Municipal sewage system |
| Parking: | 2 |
|---|
Rooms Dimension
Listing Agent:
Sandra Bradley
(250) 549-0897
(250) 549-0897
Brokerage:
Royal LePage Downtown Realty
(250) 545-5371
(250) 545-5371



