$ 250,000 – #396 415 Commonwealth Road
1 BR / 1 BA Recreational – Lake Country
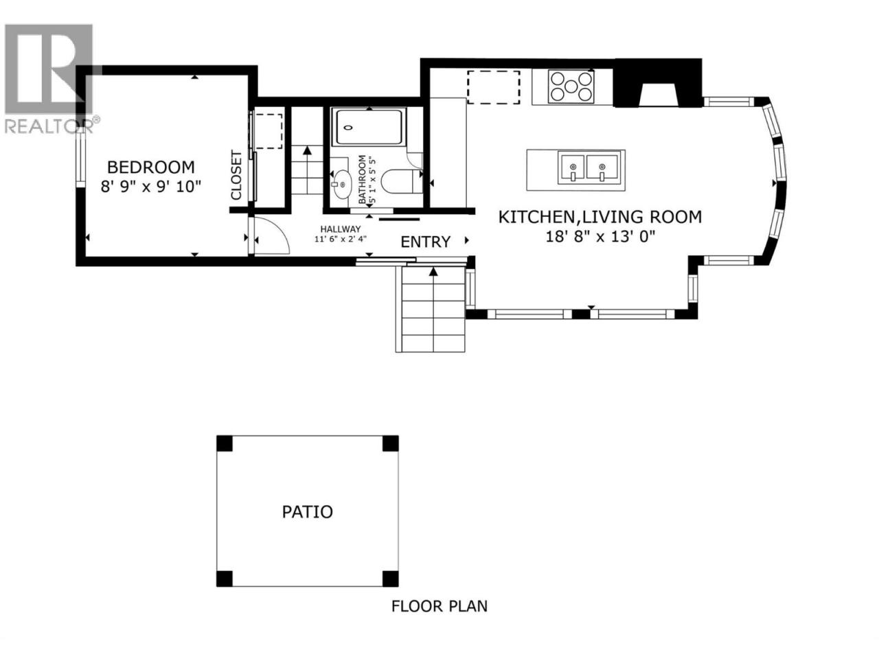
Looking for a year round slice of ""Holiday Style"" living? This is your place! This Destination Model-COTTAGE by Cedar Creek is a FULLY WINTERIZED year round model. It is immaculate and features numerous upgrades: Custom built-in pantry, water softener/filtration throughout, central vac, dbl awnings, 2 A/C units, gorgeous laminate flooring and more. ""True"" Gelcoat Exterior (The Best), All Aluminum Superstructure & 3M Bonded sidewalls. This home is immaculate with 1 bedroom on the main floor and a loft area upstairs which is great for company, or added storage or a hobby area. Kitchen/Living GREAT room has a beautiful island, lots of seating and bright dbl pane windows, a fireplace and glamorous stainless steel appliances. Gorgeous outdoor patio and gazebo with an additional storage shed. Lots of parking nearby and close to the GOLF course, RECREATION complex where you will find the indoor POOL, hot tub, gym, hair salon, washrooms and sauna. Other amenities in Holiday Park Resort are pickleball court, pools, hot tubs, library, games room, shuffleboard, woodworking shop. Lease to 2046 which is registered with the Federal Government. Pet friendly park includes a fenced in, off-leash dog park. The Maintenance Fee, payable in January of each year is $5186.44. This includes security 24-7, water, sewer, use of the amenities, maintenance of the common areas and roads, snow removal and garbage disposal area. There is no Property Transfer Tax. Short & long term rentals OK. Max 2 dogs (id:6769)Construction Info
| Interior Finish: | 400 |
|---|---|
| Flooring: | Laminate |
| Sewer: | Septic tank |
| Parking: | 2 |
|---|
Rooms Dimension
Listing Agent:
Darci Sellers
(250) 575-1733
(250) 575-1733
Brokerage:
Century 21 Assurance Realty Ltd
(250) 869-0101
(250) 869-0101



