$ 599,900 – #7 750 Dunrobin Drive
3 BR / 3 BA Single Family – Kamloops
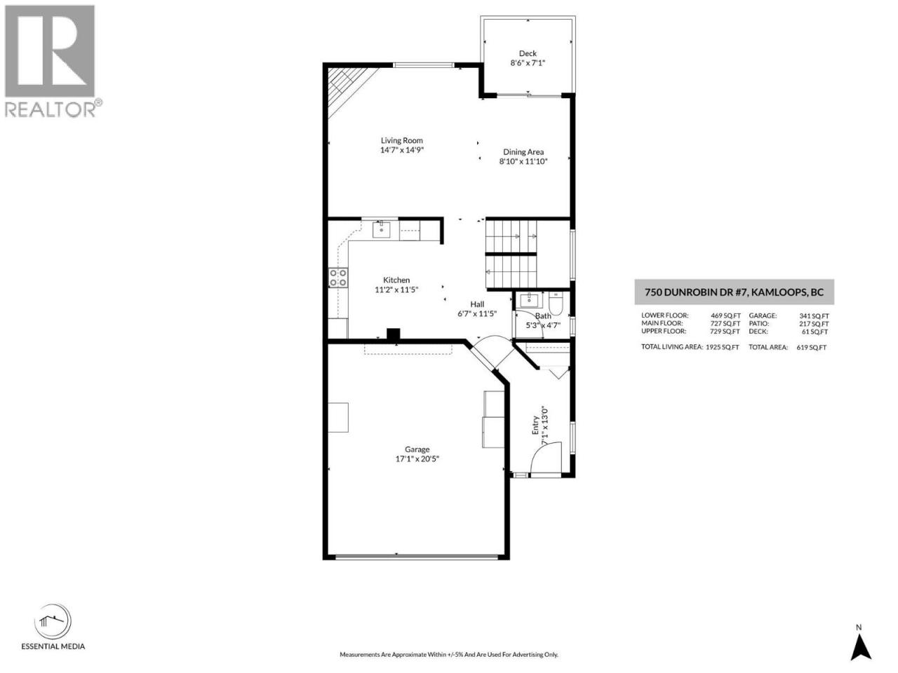
Welcome to a well-maintained and spacious family townhome in a prime location. Situated in the sought-after Pacific Way Elementary catchment, this home offers a functional layout with three bedrooms upstairs, three bathrooms, and a large separate rec room or playroom. As a desirable corner unit, it benefits from added privacy, extra natural light, and incredible city views. The main living area features a cozy gas fireplace and opens onto a sundeck, while the downstairs family room walks out to a covered patio. Recent updates include refreshed bathrooms, newer flooring throughout, and fresh paint, giving the home a clean, move-in ready feel. The fully fenced yard is ideal for children and pets. A spacious double garage provides secure parking for two vehicles along with ample room for storage. Located in a small, well-kept strata community close to shopping, schools, and amenities, this is a strong option for buyers looking for space, function, and convenience. (id:6769)Construction Info
| Interior Finish: | 1860 |
|---|---|
| Sewer: | Municipal sewage system |
| Parking Covered: | 2 |
|---|---|
| Parking: | 2 |
Rooms Dimension
Listing Agent:
Lindsay Pittman
(250) 682-6252
(250) 682-6252
Brokerage:
Stonehaus Realty Corp
(604) 492-5000
(604) 492-5000



