$ 874,900 – 3267 Powell Road
3 BR / 2 BA Single Family – Kamloops
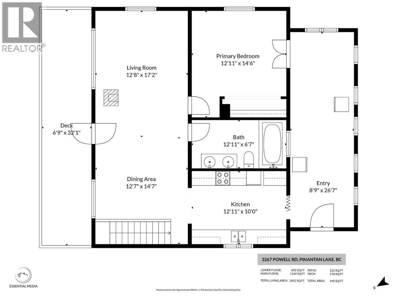
Welcome to beautiful Pinantan, where peaceful lakeside living meets rustic charm. This well-maintained log home offers a warm and inviting atmosphere, featuring 1 bedroom and 1 bathroom on the main floor, with an additional 2 bedrooms and 1 bathroom downstairs—perfect for family or guests. Cozy up year-round with two wood stoves that add both comfort and character to the home. Step outside onto the balcony and take in picturesque views while enjoying your morning coffee in total serenity. Situated on a spacious double lot just over 1 acre, this property offers plenty of room for outdoor living, complete with multiple outbuildings for storing all your tools, wood, and recreational toys. With direct waterfront access and your own 32' aluminum dock on Pinantan Lake, you can spend your days swimming, boating, or simply soaking in the natural beauty that surrounds you. If you’ve been dreaming of escaping the hustle and bustle of city life, this is your opportunity to embrace a relaxed, rural lifestyle with endless outdoor adventure right at your doorstep. Don't miss your chance to view this breathtaking property! All measurements are approximate and should be verified by the buyer if important. (id:6769)Construction Info
| Interior Finish: | 2052 |
|---|---|
| Flooring: | Concrete,Laminate,Mixed Flooring,Wood,Vinyl |
Rooms Dimension
Listing Agent:
Kylie Taphorn
(587) 989-1342
(587) 989-1342
Brokerage:
Royal LePage Westwin Realty
(250) 374-1461
(250) 374-1461



