$ 775,000 – 983 Bebek Road
5 BR / 3 BA Single Family – Kamloops
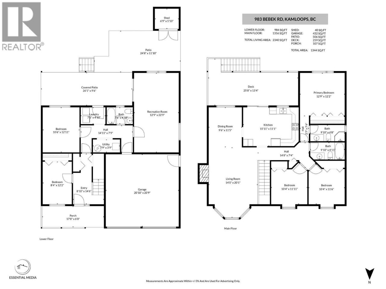
Outstanding family home offering space, function, and meaningful updates, situated on a oversized lot in one of Westsyde’s most desirable neighbourhoods. Built in 1994, this bright and well cared for home features approximately 1335 sq.ft. on the main floor with large windows and a practical layout designed for everyday living. The kitchen opens to a covered spacious deck, creating an engaging transition for indoor and outdoor entertaining. The main level includes three well sized bedrooms, including a comfortable primary suite with functional ensuite. The gas fireplace in main living space adds warmth and comfort. The lower level offers approximately 1000 sq.ft. of additional finished area, complete with a den, additional bedroom, full laundry, and a spacious family room ideal for family gatherings or extended living. Recent improvements include professional interior painting, updated lighting, and flooring, with a roof under 10 years old, making this home move in ready. A standout feature is the additional parking along the north side of the driveway, providing excellent access to the backyard and strong potential for a future shop, buyers to verify with the City of Kamloops. The yard is private, well maintained, and ready to enjoy. As a bonus, the property backs directly onto Westsyde Secondary School and David Thompson Elementary School. And yes also Westsyde Pool & Fitness Centre, offering unmatched convenience for families. Call today to make this opportunity yours! (id:6769)Construction Info
| Interior Finish: | 2340 |
|---|---|
| Sewer: | Municipal sewage system |
| Parking Covered: | 2 |
|---|---|
| Parking: | 2 |
Rooms Dimension
Listing Agent:
David Lawrence
(250) 374-1461
(250) 374-1461
Brokerage:
Royal LePage Westwin Realty
(250) 374-1461
(250) 374-1461



